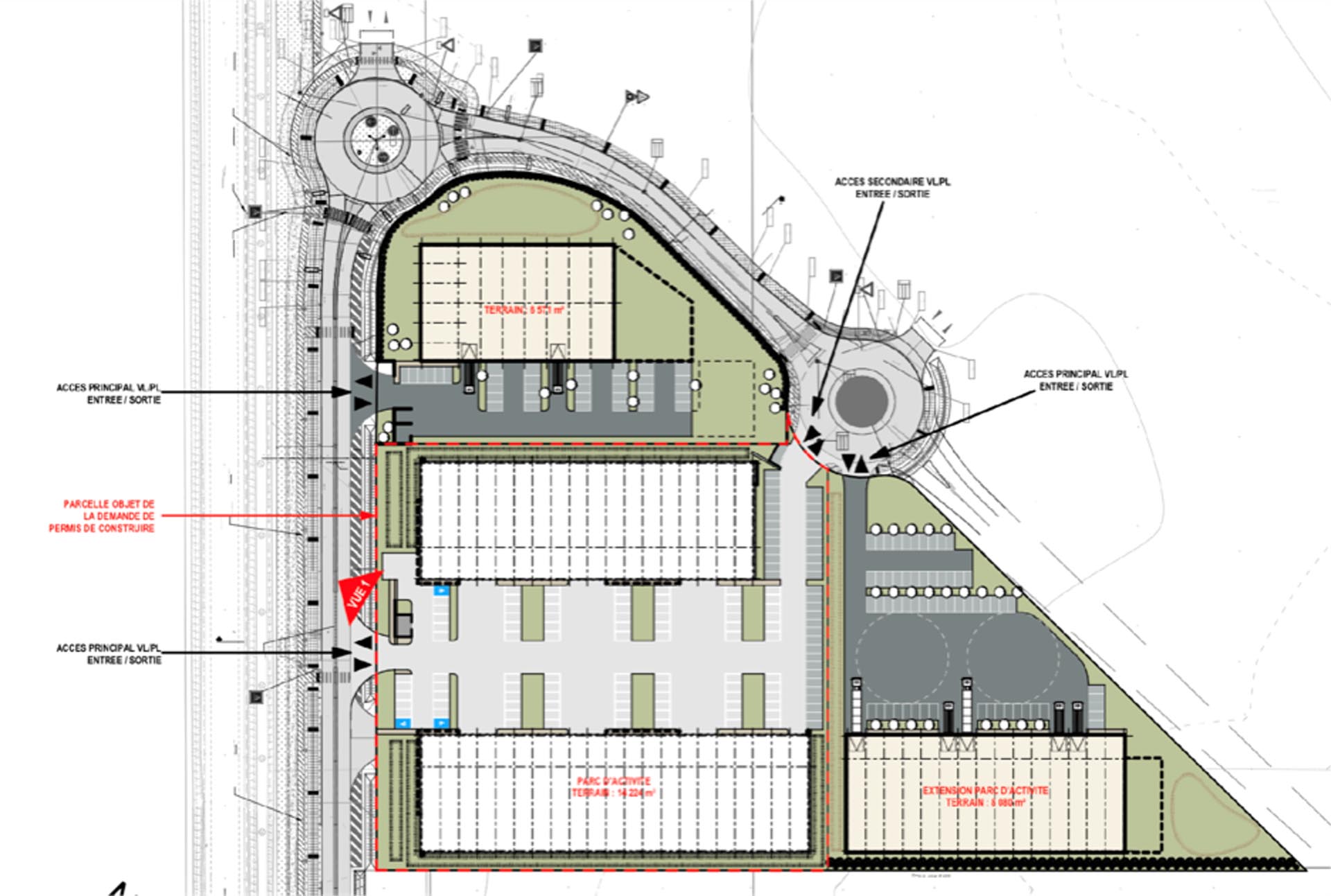
STONEHEDGE a été consulté par la Communauté de Commune de l’Orée de Brie (CCOB) pour le développement d’un parc d’activités d’une surface de plancher de 13 200 m² situé dans la ZA Haut-des-Prés sur la commune de Brie-Comte-Robert.
Le programme se compose de trois bâtiments d’activités à destination des PME/PMI/TPE et Artisans et d’un bâtiment clé-en-main pour le compte de la société JFE Concept dont l’activité est la production d’huisseries.
Dans le cadre d’un appel d’offres investisseurs conduit par STONEHEDGE, le parc d’activités a été vendu à VALOR REP, filiale de AIG en 2019.
STONEHEDGE a remporté l’appel d’offres émis par les Établissements Truffaut pour le développement d’un parc d’activités d’une surface de plancher de 5 800 m² situé sur une partie du site Truffaut Route de Villevaudé sur la commune de Villeparisis. Le programme se compose d’un bâtiment d’activités et d’un restaurant. Le programme est équipé d’une centrale photovoltaïque en toiture dont l’investissement et l’exploitation sont assurés par STONEHEDGE ENR.
Les travaux s’effectuent sur un site occupé et en exploitation. Ce projet est à destination des PME/PMI/TPE et Artisans.